Property Details
Perfectly positioned on the high side of a sought after street with north facing aspect this extremely well presented and spacious family home is being offered for sale. Perfect for the first home buyer, family or investor (being on 791sqm block which is subdividable for attached or detached dual occupancy (S.T.C.A) and situated in walking distance to local schools, parks shops and transport makes it a must to inspectand an opportunity not to be missed.
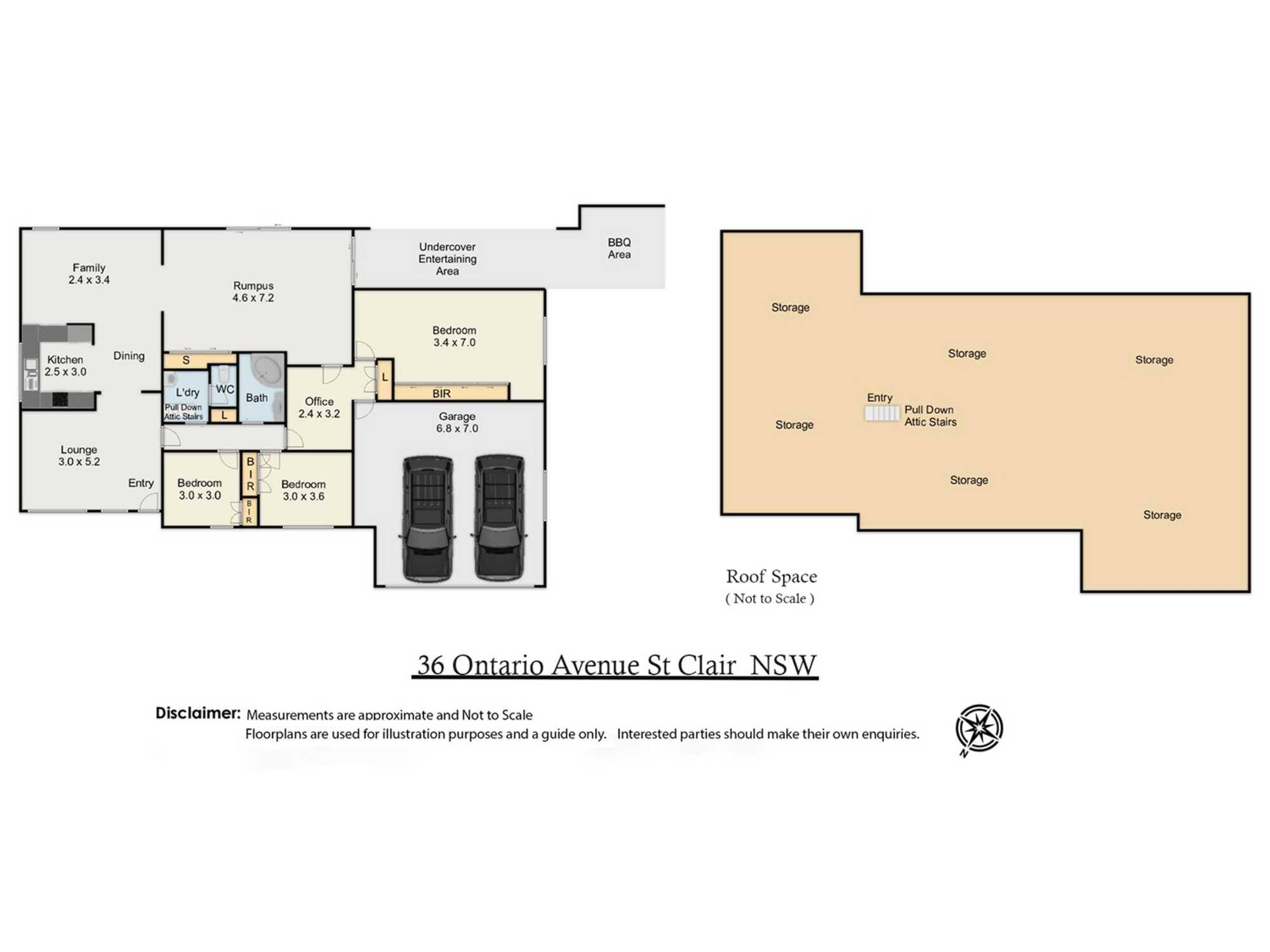
*3 good size bedrooms plus study (with oversized main bedroom), all room have built in robes and new carpet plus freshly painted in neutral colour scheme and LED downlights throughout
*Spacious light filled design with formal loungeroom on entry with gas bayonet for heating and ceiling fan,separate meals family off the kitchen area and large rumpus room at the rear complete with rakes ceilingand split system air conditioning
*Extremely neat and tidy kitchen area with gas cooktop electric oven and dishwasher, good bench space
for food preparation and potential for breakfast bar dining and lots of cupboards for storage.
*Updated main bathroom with combined shower & corner spa bath, separate toilet and great size singlesink vanity which accommodates ample storage space
*Internal laundry complete with attic stairs which offers the opportunity for plenty of storage space in theroof cavity
*Double lock up garage with automatic door and internal home access offering workshop potential plus large driveway and potential side access to accommodate extra off street parking for caravan, boat or trailor
*Private rear yard with large outdoor entertaining area and built in BBQ with all this set on a large 791sqm corner block and potential rent return of approx.. $750 plus per week.
To find out more or to book and inspection please call Chris Saleh on 0448 374 365.
Land area
791 sqm (approx)
Building size
134 sqm (approx)






















